Kakovosten vir informacij, odklenjen za vse!
Podprite naše delo

Igor Lah se umika: prodaja mariborski Manhattan in hiške na Drenovem griču

Kaj vse prodaja privatizacijski tajkun Igor Lah? In zakaj se je po več kot desetletju zapletov umaknil iz praktično vseh visokoletečih nepremičninskih projektov?

Avtor: Primož Cirman / Tomaž Modic
petek, 19. 12. 2025, 05:55


19566267.jpg
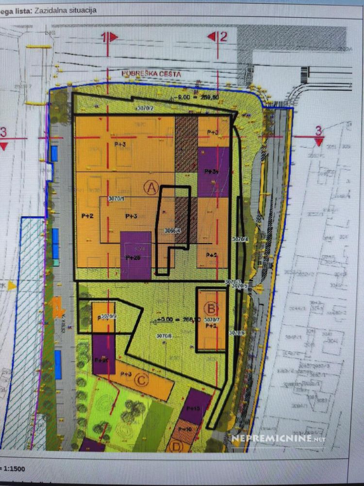
Igor Lah je hotel zgraditi “mariborski Manhattan”, ki bi imel 177.000 kvadratnih metrov stanovanjskih, poslovnih, kongresnih in hotelskih površin. Toda nad projektom je očitno obupal.
Nepremicnine.net

Privatizacijski mogotec Igor Lah, ki ima danes več sto milijonov evrov premoženja, se pospešeno umika iz nepremičninskih projektov, v katere je zadnjih 20 let vlagal denar iz časov certifikatske privatizacije.

Pred dnevi je tako objavil oglas za prodajo dveh prestižnih projektov, s katerimi je imel nekoč velike načrte. To sta:

1) Projekt "mariborski Manhattan", ki je na osem hektarjev velikem zemljišču na desnem bregu Drave predvidel gradnjo sodobne mestne četrti s 115 metrov visokim nebotičnikom. Idejni oče projekta je bil nekdanji mariborski župan Franc Kangler.

2) Projekt Drenov Grič, kjer bi moralo na zemljišču jugozahodno od Ljubljane zrasti naselje 78 vrstnih hiš.

Kot je razvidno iz oglasa, Lahova nepremičninska Ceeref za projekt "mariborski Manhattan" pričakuje osem milijonov evrov kupnine, za projekt Drenov Grič pa 350 tisoč evrov manj - skupaj torej skoraj 16 milijonov evrov.

A to nista prva nepremičninska projekta, ki ju je v zadnjem času opustil Lah. Kaj vse je do zdaj že prodal? In zakaj?

Igor Lah
Igor Lah
Primož Lavre

ceeref, igor-lah
Oglasi, ki jih je pred dnevi objavila Lahova ekipa.
Nepremicnine.net

Preberite še:
Našli smo podjetje tajkuna Igorja Laha iz davčne oaze na Karibih, ki ga je do zdaj skrival

Projekt podpiral tudi župan Kangler, a je ostal samo na papirju

Še pred finančno krizo leta 2008 je imela Mestna občina Maribor izjemne ambicije o izgradnji novega mestnega središča. Ta bi nastal na skoraj osem hektarjev velikem zemljišču ob nakupovalnem središču Europark. V njem pa bi bila stanovanja, pisarne, hoteli in kongresni prostori. Občina je decembra 2008 tudi sprejela občinski prostorski načrt, ki je tam predvideval gosto urbano pozidavo.

Projekt Dravska vrata, ki so ga Mariborčani poznali kot "mariborski Manhattan", je imel močno politično podporo. Takratni župan Franc Kangler je idejo javno podpiral in poudarjal, da bi nova pozidava mestu dala bolj sodoben, metropolitanski videz ter dopolnila podobo Maribora v času, ko je nosil naziv Evropske prestolnice kulture. 

19566265.jpg
Zemljišča, ki so na prodaj.
Nepremicnine.net

19566264.jpg
/
Nepremicnine.net

Toda projekt je ostal samo na papirju in ni prešel v fazo gradnje. Zataknilo se je tako pri denarju kot izvedbi. Po izbruhu krize je presahnil nepremičninski trg, kar je na hladno postavilo tudi številne druge projekte. Obenem so se pojavile težave z lastništvom zemljišč, dolgotrajni postopki za dovoljenja in pomanjkanje soglasij, kaj sploh zgraditi in v kakšnem obsegu.

Uradni investitor je bil sicer Lahov sklad Ceeref, ki je že plačal več milijonov evrov za zemljišča in je bil tudi dogovorjen z mariborskim gradbenim podjetjem Konstruktor, da bo z njim sodelovalo pri projektu. Toda ta je leta 2011 končal v stečaju.

Preberite še:
Nov tajkunski posel Igorja Laha: državi jemlje delnice za drobiž

Za parcelo 150.000 evrov oziroma 250 evrov na kvadrat

Veliko dlje je Lah prišel pri drugem nepremičninskem projektu, ki ga zdaj prodaja. Gre za nastajajočo sosesko vrstnih hiš na obrobju Ljubljane. Tudi pri tem projektu se je močno zapletalo. 

Okoliški prebivalci so se pritoževali, da gre za gradnjo na poplavnem območju in bodo ob večjem deževju ogrožene njihove hiše. Z njimi se je strinjala tudi državna direkcija za vode, ki Ceerefu ni izdala vodnega soglasja. Kljub temu je investitor po številnih pritožbah prek upravnega sodišča pridobil veljavno gradbeno dovoljenje. V prvi fazi so že zgradili in prodali 27 hiš. 

19566162.jpg
/
Nepremicnine.net

19566164.jpg
Soseska vrstnih hiš Drenovo na obrobju Ljubljane.
Nepremicnine.net

Preostala zemljišča v skupnem obsegu 30.600 kvadratnih metrov pa zdaj v Ceerefu prodajajo. Na njih je možna izgradnja še 51 enostanovanjskih vrstnih hiš. Vsaka parcela torej v povprečju meri 600 kvadratnih metrov, stane pa 150.000 evrov oziroma 250 evrov na kvadrat.

Preberite še:
Kako je Igor Lah iz nas naredil bedake #kolumna

Projekt Šmartinka prodal češkemu milijarderju in novemu premierju

Pred časom smo poročali, da se je Igor Lah že umaknil iz treh drugih večjih projektov. Septembra 2022 je prodal ogromno, skoraj štiri hektarje veliko zemljišče v Ljubljani, ki se nahaja pri nekdanji tovarni Kolinska - v trikotniku med Šmartinsko, Kolinsko in Kavčičevo ulico. Na njem bi po prostorskih načrtih lahko zraslo več kot 400 stanovanj. 

Zemljišče je pred več kot 20 leti prešlo v roke družb, ki jih obvladuje Lah. Toda ta se je po dolgem čakanju odločil, da sam na zemljišču ne bo gradil stanovanj, ampak bo raje izkoristil nepremičninsko mrzlico in ga drago prodal. Kupilo ga je podjetje CC Koppa, ki ima dva lastnika: slovaško družbo Corwin, ki je v Ljubljani že zgradila sosesko Kvart v Šiški, pripravlja pa še tri druge projekte, in češko podjetje Hartenberg. Njegov lastnik je milijarder Andrej Babiš, ki je nedavno ponovno postal predsednik češke vlade.

Po naših informacijah so Babiš in Slovaki Lahu za zemljišče pri Kolinski plačali več kot 25 milijonov evrov (brez DDV) oziroma več kot 650 evrov na kvadratni meter. Gre za enega največjih nakupov v zgodovini Ljubljane. To tudi pomeni, da je Lah s tem poslom ustvaril velikanski dobiček.

corwin, igor-lah
Zemljišče, ki je bilo prej v lasti Lahove družbe Ceeref.
Google

Preberite še:
Nekdanji češki premier kupuje ogromno zemljišče v Ljubljani

Prodal tudi projekte v Portorožu in Karigadorju

Le nekaj mesecev prej je Lah prodal več kot hektar veliko zemljišče v naselju Beli Križ nad Portorožom, na katerem je načrtoval 25 milijonov evrov vredno gradnjo luksuznih vil s pogledom na Piranski zaliv.

Podjetje Sončne vile, ki je v lasti Marka Lukića, lastnika proizvajalca montažnih hiš Lumar, in Gašparja Gašparja Mišiča, nekdanjega direktorja občinskega komunalnega podjetja Okolje Piran in enega najbolj znanih nepremičninarjev na Obali, je Lahu za zemljišče plačalo nekaj manj kot 5,7 milijona evrov (z DDV) ali okoli 450 evrov na kvadratni meter.

Lah je pri tem poslu utrpel visoko izgubo. Ceeref je do parcel prišel leta 2006, v zlatih časih gradbeništva. Zanje je plačal rekordnih 8,6 milijona evrov ali 706 evrov na kvadratni meter, torej tri milijone evrov več, kot je zanje iztržil 16 let pozneje.

Gašpar Mišič obala 3.png
Zemljišča, ki jih je kupil Gašpar Gašpar Mišič, se nahajajo na elitni lokaciji nad Portorožom.
Google

Novega lastnika je v istem času dobil tudi načrtovani projekt gradnje enajstih apartmajskih hiš v Karigadorju, istrskem letovišču med Umagom in Novigradom. Lah jih je za nekaj več kot 1,5 milijona evrov prodal podjetju SSI 12 iz Celja. Njegova lastnika sta Lenart Sotošek in Bogdan Jančič, direktor pa Sergej Murgelj.

Od velikih naložb v Lahovem nepremičninskem portfelju po podatkih EBONITETE.SI ostaja le stolpnica TR3 v središču Ljubljane. 

Preberite še:
Gašpar Mišič kupuje elitno zemljišče nad Piranskim zalivom

Podprite Necenzurirano.si

Podpora kakovostnemu novinarstvu pomeni vlaganje v medijski prostor, kjer so informacije preverjene, kontekst jasen in javni interes na prvem mestu.

Podprite naše delo